DENÚNCIA: MAIS UMA Obra de quase R$ 2,3 milhões da gestão de André Coutinho em Cabedelo que não avança e já teria recebido mais de R$ 1,7 milhão


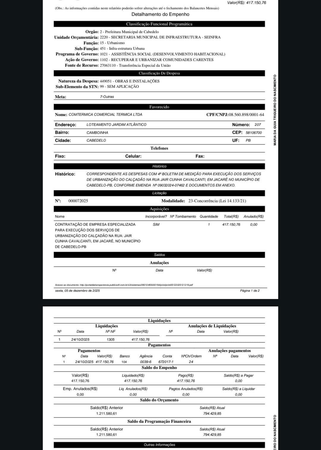
Mais uma obra da gestão do ex-prefeito André Coutinho, em Cabedelo, pode estar apresentando indícios de irregularidade. Moradores afirmam que o calçadão contratado junto à construtora Cotermica, avaliado em R$ 2.258.000,00, não teria sequer avançado 400 metros, apesar de já ter sido empenhado aproximadamente R$ 1.702.000,00, conforme documentos anexos.


A situação seria semelhante à mais uma denúncia apresentada há alguns dias, envolvendo uma escola da cidade cuja obra também não estaria avançando, mesmo após supostos repasses milionários. Os dois casos podem indicar um possível padrão de obras que não evoluiriam na prática, mas que teriam movimentação financeira significativa durante a gestão.


As denúncias em Cabedelo se multiplicariam, mesmo diante da curta gestão de André Coutinho, que foi cassado pelo Tribunal Regional Eleitoral da Paraíba por suposto envolvimento com o crime organizado. Com a cassação confirmada, a transição no comando municipal deverá ocorrer nos próximos dias. A previsão é de que, no dia 11, o presidente da Câmara Municipal assuma a Prefeitura, que em seguida passará por mais uma eleição.


Moradores da cidade portuária afirmam que a população deveria receber respostas claras e pedem que TCE-PB, Ministério Público Estadual e Ministério Público Federal possam apurar os fatos e verificar se haveria indícios de irregularidades ou má aplicação dos recursos públicos.


#Cabedelo #AndréCoutinho #ObrasParadas #Denúncia #Transparência #ControleSocial #TCEPB #MPE #MPF #Fiscalização #Cassação #TREPB #NovoPrefeito

Blog do Milton Figueirêdo

Milton Figueirêdo

Jornalista com especialização em telejornalismo.

Pressione ESC ou feche